La Ballerie farmhouse & gîte. Heated pool and games barn in walled garden. | House in Melleran

6 Bedroom House in Melleran
La Ballerie is a traditional Charentaise farmhouse and gîte in a spacious, enclosed walled garden with a 10x5m heated saltwater pool and games barn. Perfect for a large family get together or for two to three families with toddlers to teenagers or for groups of friends. The farmhouse and gîte both have thick stone walls and tiled floors making them delightfully cool on hot summer days.
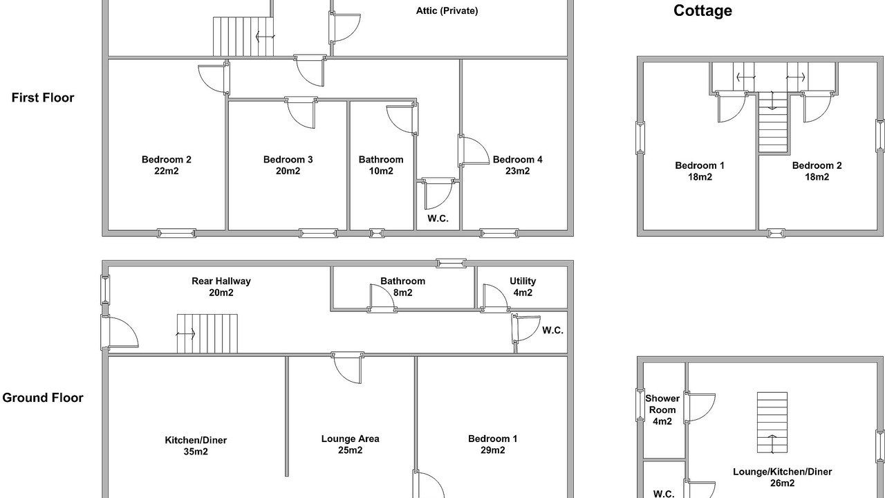
The farmhouse boasts an open plan living room and big farmhouse dining kitchen which is perfect for making self-catering a sociable affair. The well-equipped kitchen includes an oven with gas hob, microwave, fridge-freezer, coffee maker and dishwasher. A washing machine and ironing facilities can be found in the utility room. As well as the main lounge equipped with TV, DVD player and music dock, youngsters have their own snug to watch TV or DVD’s, play Wii games, board games or set up the table football. Toys and books for younger children are also provided. The master double bedroom in the farmhouse is on the ground floor and features a canopied, solid wooden bed and a decorative stove. The second double bedroom, with a wrought iron bedstead, is on the first floor, along with two twin rooms with antique wooden beds. The farmhouse has a bathroom, a shower room and two wcs. The gîte has its own dining kitchen, with an oven, electric hob, microwave, fridge, dining table for four and a wall-mounted TV. The master bedroom has a double wrought iron bed and the second bedroom has twin wrought iron single beds. The gîte has its own shower room and wc. The farmhouse and the gîte have the rustic charm and character of stone walls and beamed ceilings throughout.
Both farmhouse and gîte are in an enclosed walled garden with plenty of space for off road parking on the gravelled drive. Alongside the farmhouse there is a covered dining area, perfect for al fresco dining. The sizeable games barn benefits from table tennis, a pool table, darts and swing ball. For younger children there is a play house, rocker and a variety of other toys. The 10x5m heated saltwater pool has infant friendly steps and is fenced and gated, with sun loungers and umbrellas. The pool is for your private use and is heated from early May to late September.
For families with young children one wooden cot and two travel cots are available on request and all the bedrooms have space for a cot. Further equipment including stair gates, high chairs, bed guards, bottle sterilizers, potties and children’s cutlery are available if required.
La Ballerie is in a peaceful rural location in the Poitou Charente region of Western France. The farmhouse and gîte are on the edge of the small village of Melleran which boasts a 12th century church, children's play ground, boules pitches and community run bar. More shops, supermarkets, restaurants, cafe bars and a Saturday market are just 10 minutes’ drive in the small town of Chef-Boutonne, which also boasts the Château de Javarzay with a beautiful lakeside walk and play area.
The capital of Poitou Charente, Poitiers (50 mins) is a pretty city to explore, encircled by the Clain and Boivre rivers and with a pedestrianised centre of quaint little streets and squares buzzing with pavement cafes. Just outside Poitiers, Futuroscope is one of the biggest theme parks in France, with an awesome array of interactive experiences and attractions for all ages and with few height restrictions, from thrilling rides to 4D shows.
The wetlands and waterways of the Marais Poitivin (45 mins) are another highlight of the region, known as the ‘green Venice’ of France. Flat bottomed boat trips glide through the reedy canals or families can hire a canoe to explore, keeping eyes peeled for all the birdlife. Animal lovers might also enjoy a day out to Monkey Valley (40 mins), Zoodysee (45 mins) and Crocodile Planet (60 mins).
For a change from splashing in the swimming pool at La Ballerie, families can pack a picnic and have an afternoon on the lake beaches of Lac du Lambon (35 mins) or enjoy a day on the Atlantic beaches near La Rochelle (90 mins). The historic sea port of La Rochelle has a buzzing walled town to explore within formidable ramparts and families can also cross a big bridge to the Ile de Re, renowned for its dune backed sandy beaches and chic harbour towns.
La Ballerie farmhouse & gîte Heated pool and games barn in walled garden is located in Melleran. La Ballerie farmhouse & gîte Heated pool and games barn in walled garden provides accommodation, featuring Parking, TV, Bedding/Linens, among other amenities. This House features Parking, TV, Bedding/Linens, to make your stay a comfortable one.
La Ballerie farmhouse & gîte Heated pool and games barn in walled garden has 6 Bedrooms , 4 Bathrooms, and max occupancy of 12 people. The minimum rental for this property is 1 nights, but this can change depending on the season you plan on staying. Previous guests have given good rated it, and VRBO labeled it a top-rated House because of the excellent services rendered by the owner or manager of this House, and has consistently provided great experiences for their guests. Most families or guests that use it recommend it to their friends and some of them are repeat guests. House has a friendly neighborhood, and the Melleran has interesting places to visit. If you want to learn more about the House in Melleran, such as places to visit and things to do nearby, you can check below to learn more.
Amenities
Policies
Extra-person charges may apply and vary depending on property policy government-issued photo identification and a credit card, debit card, or cash deposit may be required at check-in for incidental charges onsite parties or group events are strictly prohibited safety features at this property include a carbon monoxide detector, a fire extinguisher, a smoke detector, and a first aid kit special requests are subject to availability upon check-in and may incur additional charges; special requests cannot be guaranteed this property is managed through our partner, vrbo. you will receive an email from vrbo with a link to a vrbo account, where you can change or cancel your reservation